Ολοκληρώσαμε με επιτυχία ένα σύνθετο έργο ηλεκτρολογικού σχεδιασμού για βιομηχανική μονάδα, αναλαμβάνοντας την πλήρη αποτύπωση και τεκμηρίωση ενός υφιστάμενου πίνακα ελέγχου χωρίς διαθέσιμα σχέδια.
Τεχνικά Χαρακτηριστικά του Έργου
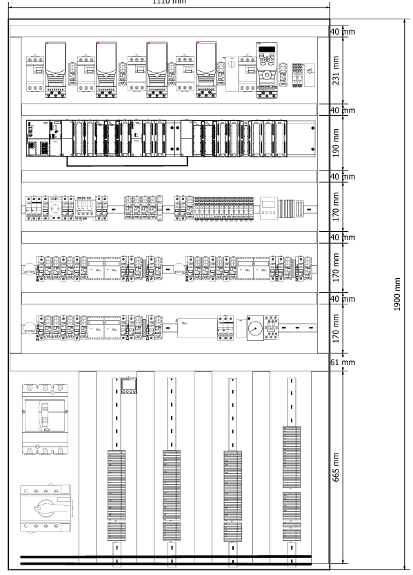
Το έργο περιλάμβανε την πλήρη καταγραφή και σχεδιασμό ενός προηγμένου συστήματος αυτοματισμού που ενσωματώνει:
– Πέντε inverters τελευταίας τεχνολογίας για τον ακριβή έλεγχο αντλιών
– Προγραμματιζόμενο Λογικό Ελεγκτή (PLC) Siemens S300
– Ολοκληρωμένο σύστημα ψηφιακών εισόδων/εξόδων
– Αναλογικές διεπαφές για ακριβή μετρήσεις και έλεγχο
Η Προσέγγισή μας
Η ομάδα μας ανέλαβε την πρόκληση της αντίστροφης μηχανικής (reverse engineering) του υπάρχοντος συστήματος, δημιουργώντας λεπτομερή ηλεκτρολογικά σχέδια και διαγράμματα ροής που:
– Αποτυπώνουν με ακρίβεια όλες τις υφιστάμενες συνδέσεις
– Απεικονίζουν αναλυτικά την διασύνδεση και αλληλεπίδραση των συστημάτων ελέγχου.
– Τεκμηριώνουν πλήρως τη λειτουργικότητα του συστήματος
– Διευκολύνουν τη μελλοντική συντήρηση και αναβάθμιση
– Συμμορφώνονται με όλα τα σύγχρονα βιομηχανικά πρότυπα
Οφέλη για τον Πελάτη
Η ολοκλήρωση του έργου προσέφερε στον πελάτη:
– Πλήρη τεχνική τεκμηρίωση του συστήματος αυτοματισμού
– Βελτιωμένη δυνατότητα συντήρησης και επίλυσης προβλημάτων
– Ευκολότερο προγραμματισμό μελλοντικών αναβαθμίσεων
– Συμμόρφωση με τις απαιτήσεις ασφαλείας και ποιότητας
Η επιτυχής ολοκλήρωση αυτού του έργου αποδεικνύει την τεχνική μας αριστεία και την ικανότητά μας να παρέχουμε ολοκληρωμένες λύσεις βιομηχανικού αυτοματισμού, ακόμη και στις πιο απαιτητικές περιπτώσεις.
Φωτογραφικό Υλικό




